facebook Skip to main content
Image Banner

The Carsington Phase 2

  • Detached
  • 3 Bedroom

Available Plots

  • Plot 332

    3-bedroom detached home

    Future Release

  • Plot 362

    3-bedroom detached home

    Future Release

  • Plot 493

    3-bedroom detached home

    Future Release

The Carsington

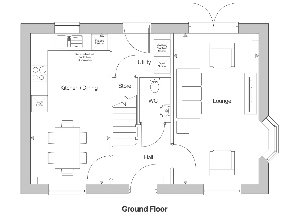
The Carsington is a charming three-bedroom home, designed for modern living. The ground floor features a spacious open-plan kitchen and dining area with a separate utility room and a full-length lounge with French doors that open directly onto the garden.

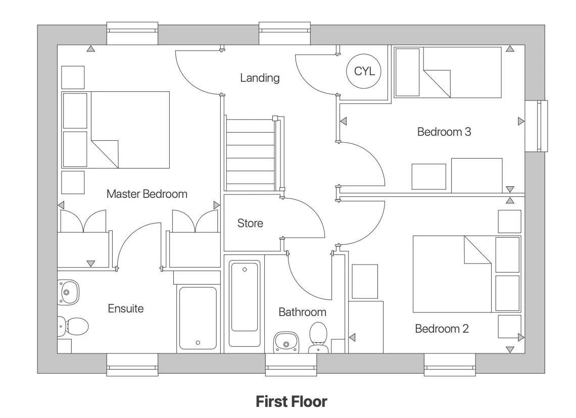
Upstairs, the master bedroom includes a generous ensuite, accompanied by two additional bedrooms and a well-appointed family bathroom, providing comfort and convenience for the entire household.

Development Details

Development Address

Off Field Farm Way, Stapleford, NG9 8BY

Opening Times

Thursday to Monday, 11am - 5pm.

The Carsington Floor Plan

Floor Plan Image
Floor Plan Image

The Carsington Ground Floor

The Carsington First Floor

Site plan

Click on the dots on the map to show the housetype.

Map Image

Future Release

Available

Reserved/On Hold

Sold

Map Image

Future Release

Available

Reserved/On Hold

Sold

Mortgage Calculator

Use the calculator below to find out your potential mortgage.

£
£
%

*For more information about this calculator please visit this website
*This is not a formal quotation or a commitment to lend. All figures provided are for illustrative purposes only. Figures provided will be dependent on your financial situation, property value and the size of your deposit or equity.

Mortgage Calculator Results

Total Mortgage

--

Monthly Payments

--

Total Repayable

--

Stamp Duty Calculator

Use the calculator below to find out your potential stamp duty.

I am a
£

*For more information about this calculator please visit this website
*This is not a formal quotation or a commitment to lend. All figures provided are for illustrative purposes only. Figures provided will be dependent on your financial situation, property value and the size of your deposit or equity.

Stamp Duty Calculator Results

Stamp Duty Total

--

Speak to us today

Please use the form to ask us any questions or requests that you may have. We endeavour to get back to you as soon as possible.

I'm happy to be contacted via:

Let us know how you'd like to hear about our available housetypes, latest offers, competitions, plot releases, new developments, magazine and more.

Please note: changing your preferences for this development will update your preferences for any other developments you may have previously enquired about. If you do not click "email" again, you will automatically be unsubscribed from any existing lists.

Plot Thumbnail

-

  • From
  • beds
  • bathrooms
View housetype