facebook Skip to main content
Image Banner

The Ingleby Phase 2

  • Detached
  • 4 Bedroom

Available Plots

  • Plot 343

    4-bedroom detached home

    Future Release

  • Plot 486

    4-bedroom detached home

    Future Release

The Ingleby

The Ingleby is an impressive four-bedroom home featuring a dedicated full-length lounge with French doors to the rear garden, an open-plan kitchen dining space with useful utility, and a separate front-facing room, which can be utilised as a study or additional dining room.

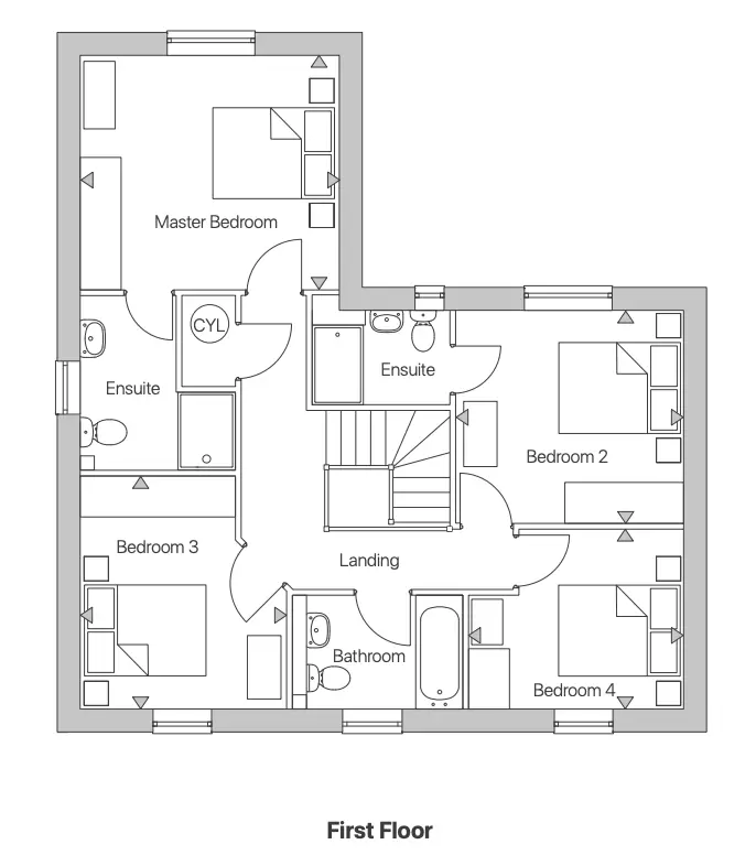
Upstairs, you will find a large master bedroom, complete with ensuite as well as three more double bedrooms and large family bathroom. Bedroom two also benefits from its own ensuite. 

Development Details

Development Address

Off Field Farm Way, Stapleford, NG9 8BY

Opening Times

Thursday to Monday, 11am - 5pm.

The Ingleby Floor Plan

Floor Plan Image
Floor Plan Image

The Ingleby Ground Floor

The Ingleby First Floor

Site plan

Click on the dots on the map to show the housetype.

Map Image

Future Release

Available

Reserved/On Hold

Sold

Map Image

Future Release

Available

Reserved/On Hold

Sold

Mortgage Calculator

Use the calculator below to find out your potential mortgage.

£
£
%

*For more information about this calculator please visit this website
*This is not a formal quotation or a commitment to lend. All figures provided are for illustrative purposes only. Figures provided will be dependent on your financial situation, property value and the size of your deposit or equity.

Mortgage Calculator Results

Total Mortgage

--

Monthly Payments

--

Total Repayable

--

Stamp Duty Calculator

Use the calculator below to find out your potential stamp duty.

I am a
£

*For more information about this calculator please visit this website
*This is not a formal quotation or a commitment to lend. All figures provided are for illustrative purposes only. Figures provided will be dependent on your financial situation, property value and the size of your deposit or equity.

Stamp Duty Calculator Results

Stamp Duty Total

--

Speak to us today

Please use the form to ask us any questions or requests that you may have. We endeavour to get back to you as soon as possible.

I'm happy to be contacted via:

Let us know how you'd like to hear about our available housetypes, latest offers, competitions, plot releases, new developments, magazine and more.

Please note: changing your preferences for this development will update your preferences for any other developments you may have previously enquired about. If you do not click "email" again, you will automatically be unsubscribed from any existing lists.

Plot Thumbnail

-

  • From
  • beds
  • bathrooms
View housetype