facebook Skip to main content
Image Banner

The Appleby

Available from £424,995

  • Detached
  • 4 Bedroom

Available Plots

  • Plot 2

    4-bedroom detached home

    Future Release

  • Plot 11

    4-bedroom detached home

    Future Release

  • Plot 19

    4-bedroom detached home

    Future Release

  • Plot 37

    4-bedroom detached home

    Future Release

  • Plot 42

    4-bedroom detached home

    Future Release

  • Plot 53

    4-bedroom detached home

    Future Release

  • Plot 54

    4-bedroom detached home

    £424,995

The Appleby

This spacious four-bedroom home is a double-fronted, detached house that offers exceptional living space, highlighted by a generously sized open-plan kitchen, dining, and family area that stretches seamlessly across the full width of the property. Perfectly connecting indoor and outdoor living, central French doors open directly into the garden. Additionally, on the ground floor, you’ll discover a separate lounge and a study.

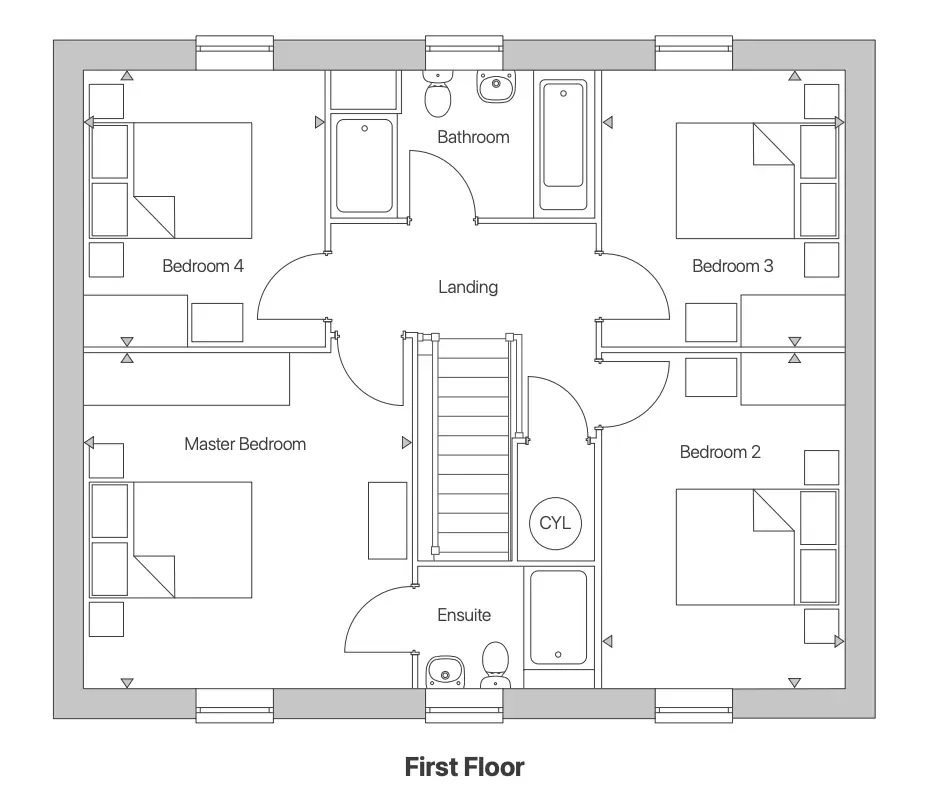
Heading to the first floor, the theme of spaciousness continues with four double bedrooms. The master bedroom boasts its own private ensuite, while the three remaining bedrooms share a well-appointed family bathroom.

Development Details

Development Address

Hesketh Close, Codnor, Ripley, DE5 9TT

Opening Times

Viewing by Appointment Only

The Appleby Floorplans

Floor Plan Image
Floor Plan Image

The Appleby Ground Floor

The Appleby First Floor

Site plan

Click on the dots on the map to show the housetype.

Map Image

Future Release

Available

Reserved/On Hold

Sold

Mortgage Calculator

Use the calculator below to find out your potential mortgage.

£
£
%

*For more information about this calculator please visit this website
*This is not a formal quotation or a commitment to lend. All figures provided are for illustrative purposes only. Figures provided will be dependent on your financial situation, property value and the size of your deposit or equity.

Mortgage Calculator Results

Total Mortgage

--

Monthly Payments

--

Total Repayable

--

Stamp Duty Calculator

Use the calculator below to find out your potential stamp duty.

I am a
£

*For more information about this calculator please visit this website
*This is not a formal quotation or a commitment to lend. All figures provided are for illustrative purposes only. Figures provided will be dependent on your financial situation, property value and the size of your deposit or equity.

Stamp Duty Calculator Results

Stamp Duty Total

--

Speak to us today

Please use the form to ask us any questions or requests that you may have. We endeavour to get back to you as soon as possible.

I'm happy to be contacted via:

Let us know how you'd like to hear about our available housetypes, latest offers, competitions, plot releases, new developments, magazine and more.

Please note: changing your preferences for this development will update your preferences for any other developments you may have previously enquired about. If you do not click "email" again, you will automatically be unsubscribed from any existing lists.

Plot Thumbnail

-

  • From
  • beds
  • bathrooms
View housetype