facebook Skip to main content
Image Banner

The Bradgate

  • Detached
  • 4 Bedroom

Available Plots

  • Plot 18

    4-bedroom detached home

    Future Release

  • Plot 20

    4-bedroom detached home

    Future Release

The Bradgate

The Bradgate is a spacious four-bedroom detached family home. The ground floor welcomes you with a hallway leading to a front-facing lounge, an open-plan kitchen and dining area, a WC, and ample storage space. The kitchen and dining area feature French doors that open to the rear garden, seamlessly blending indoor and outdoor living. 

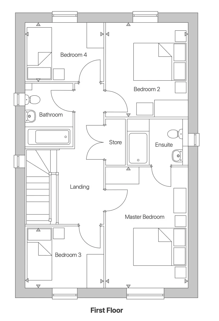
On the first floor, you’ll find four generously sized bedrooms and a large family bathroom. The master bedroom offers plenty of space and includes a private ensuite, providing a comfortable and luxurious retreat.

Development Details

Development Address

Hesketh Close, Codnor, Ripley, DE5 9TT

Opening Times

Viewing by Appointment Only

The Bradgate Floorplans

Floor Plan Image
Floor Plan Image

The Bradgate Ground Floor

The Bradgate First Floor

Site plan

Click on the dots on the map to show the housetype.

Map Image

Future Release

Available

Reserved/On Hold

Sold

Mortgage Calculator

Use the calculator below to find out your potential mortgage.

£
£
%

*For more information about this calculator please visit this website
*This is not a formal quotation or a commitment to lend. All figures provided are for illustrative purposes only. Figures provided will be dependent on your financial situation, property value and the size of your deposit or equity.

Mortgage Calculator Results

Total Mortgage

--

Monthly Payments

--

Total Repayable

--

Stamp Duty Calculator

Use the calculator below to find out your potential stamp duty.

I am a
£

*For more information about this calculator please visit this website
*This is not a formal quotation or a commitment to lend. All figures provided are for illustrative purposes only. Figures provided will be dependent on your financial situation, property value and the size of your deposit or equity.

Stamp Duty Calculator Results

Stamp Duty Total

--

Speak to us today

Please use the form to ask us any questions or requests that you may have. We endeavour to get back to you as soon as possible.

I'm happy to be contacted via:

Let us know how you'd like to hear about our available housetypes, latest offers, competitions, plot releases, new developments, magazine and more.

Please note: changing your preferences for this development will update your preferences for any other developments you may have previously enquired about. If you do not click "email" again, you will automatically be unsubscribed from any existing lists.

Plot Thumbnail

-

  • From
  • beds
  • bathrooms
View housetype