facebook Skip to main content
Image Banner

The Tissington

Available from £309,995

  • Detached
  • 3 Bedroom

The Tissington

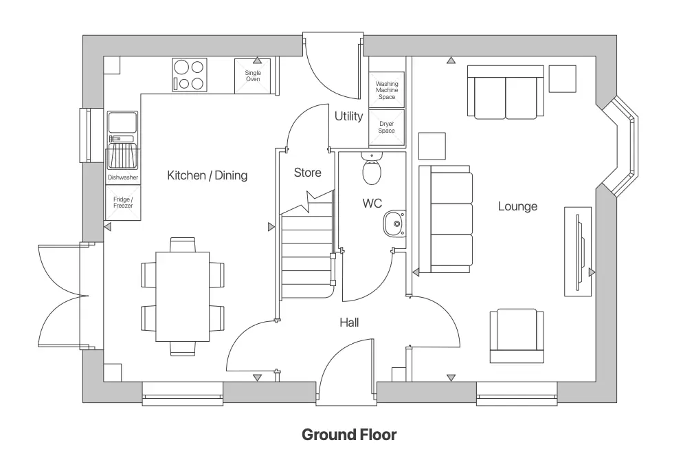
Step into this inviting three-bedroom home, where a dual-aspect lounge featuring a charming bay window awaits. The open-plan kitchen and dining area boasts French doors that open onto the garden, complemented by a convenient storage cupboard and a practical utility room with outside access.

The impressive master bedroom spans the full depth of the house, offering ample space and a luxurious ensuite, creating a private sanctuary. Two additional spacious bedrooms are accessible from the central landing, along with a well-appointed family bathroom, ensuring comfort and functionality throughout this home.

Development Details

Development Address

Hesketh Close, Codnor, Ripley, DE5 9TT

Opening Times

Viewing by Appointment Only

Available Plots

  • Plot 55

    3-bedroom detached home

    £312,995

  • Plot 7

    3-bedroom detached home

    Future Release

  • Plot 14

    3-bedroom detached home

    On Hold

  • Plot 17

    3-bedroom detached home

    Future Release

  • Plot 23

    3-bedroom detached home

    Future Release

  • Plot 25

    3-bedroom detached home

    Future Release

  • Plot 32

    3-bedroom detached home

    Future Release

  • Plot 36

    3-bedroom detached home

    Future Release

  • Plot 38

    3-bedroom detached home

    Future Release

  • Plot 49

    3-bedroom detached home

    Future Release

  • Plot 52

    3-bedroom detached home

    Future Release

The Tissington Floor Plans

Floor Plan Image
Floor Plan Image

The Tissington Ground Floor

The Tissington First Floor

Site plan

Click on the dots on the map to show the housetype.

Map Image

Future Release

Available

Reserved/On Hold

Sold

Mortgage Calculator

Use the calculator below to find out your potential mortgage.

£
£
%

*For more information about this calculator please visit this website
*This is not a formal quotation or a commitment to lend. All figures provided are for illustrative purposes only. Figures provided will be dependent on your financial situation, property value and the size of your deposit or equity.

Mortgage Calculator Results

Total Mortgage

--

Monthly Payments

--

Total Repayable

--

Stamp Duty Calculator

Use the calculator below to find out your potential stamp duty.

I am a
£

*For more information about this calculator please visit this website
*This is not a formal quotation or a commitment to lend. All figures provided are for illustrative purposes only. Figures provided will be dependent on your financial situation, property value and the size of your deposit or equity.

Stamp Duty Calculator Results

Stamp Duty Total

--

Speak to us today

Please use the form to ask us any questions or requests that you may have. We endeavour to get back to you as soon as possible.

I'm happy to be contacted via:

Let us know how you'd like to hear about our available housetypes, latest offers, competitions, plot releases, new developments, magazine and more.

Please note: changing your preferences for this development will update your preferences for any other developments you may have previously enquired about. If you do not click "email" again, you will automatically be unsubscribed from any existing lists.

Plot Thumbnail

-

  • From
  • beds
  • bathrooms
View housetype